Exterior

Northern Mobile Homes
Northern Mobile Homes stands out as New Hampshire’s best option for manufactured homes, thanks to our unbeatable combination of exceptional service, affordable prices, and a vast selection. Visit us today to experience why local homebuyers consistently choose New England Mobile & Manufactured Homes as their trusted home dealer. New England Mobile & Manufactured Homes is the best choice for your manufactured or mobile home in Rochester, NH.
Enter your address or APN to check if this home fits on your property
Enter your property street address or APN
Interior
Construction
Kitchen
Bathroom
Get started with Northern Mobile Homes
Find, design, and order your next home in a few clicks.
Dealer License #:
Images of homes are solely for illustrative purposes and should not be relied upon. Images may not accurately represent the actual condition of a home as constructed, and may contain options which are not standard on all homes.
$102,900
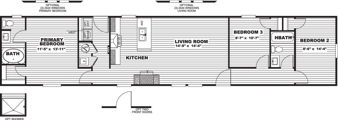
3 Bed | 2 Bath | 1,191 Sq. Ft. | 16' x 76'
$112,900
3 Bed | 2 Bath | 1,191 Sq. Ft. | 16' x 76'
$112,900
3 Bed | 2 Bath | 1,191 Sq. Ft. | 16' x 76'